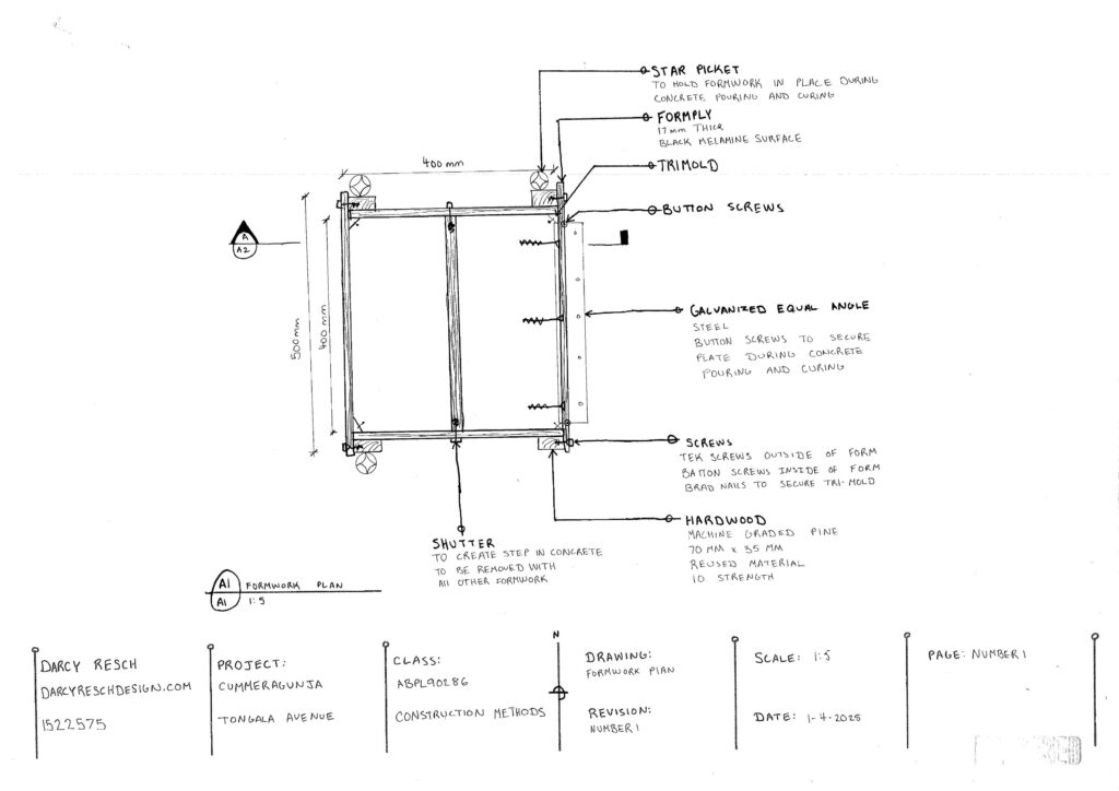
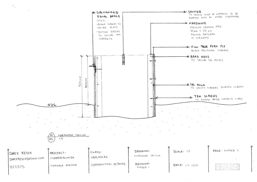
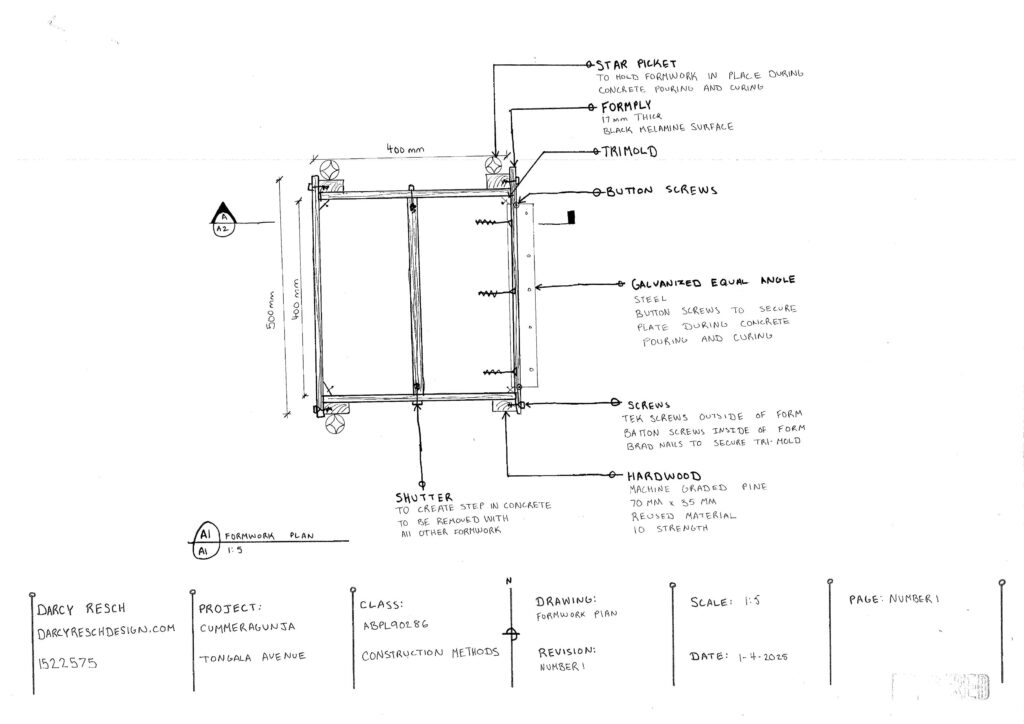
This community bench project at Cummeragunja documents a three day design and build undertaken in close collaboration with the Yorta Yorta community through the University of Melbourne’s Bower Studio. The project involved the construction of boomerang shaped concrete bench bases with sustainably sourced red gum timber seating, with surface patterns cast directly into the concrete inspired by the Murray River through fish scale and river reed motifs. Beyond its technical construction, the project foregrounds culturally respectful design, community led decision making, and hands on learning on Country. Students engaged directly with site preparation, formwork fabrication, concrete pouring, timber detailing, and landscape restoration, learning how material durability, environmental response, and cultural meaning intersect at a small but powerful architectural scale. The benches now serve as lasting public infrastructure while also embodying an ethics of collaboration, care for place, and responsibility in architectural practice